您的瀏覽器不支援JavaScript功能,若網頁功能無法正常使用時,請開啟瀏覽器JavaScript狀態。
跳到主要內容
高雄眷村
:::
網站導覽
回首頁
高雄市政府
高雄市文化局
住戶登入
導覽地圖
展開搜尋
全站搜尋
熱門關鍵字:
十年駐村
五年駐村
黃埔新村
建業新村
醒村
樂群村
鳳山眷村
左營眷村
岡山眷村
以住代護
關閉搜尋
您的瀏覽器不支援此script語法,請點選
搜尋
使用搜尋功能。
Menu
眷村動態
最新消息
政策公告
相關連結
展演活動
活動訊息
聊眷村
眷村歷史
鳳山黃埔新村
左營建業新村
岡山樂群村
岡山醒村
計畫發展
線上影音
眷村好店
眷村群介紹
黃埔新村
建業新村
樂群村
醒村
眷村導覽
眷村導覽地圖
眷村店家
眷村遊程
建業新村遊程
黃埔新村遊程
以住代護
線上申辦
線上申請查詢
申請眷戶
黃埔新村
建業新村
我是住戶
常見問答
檔案下載
網站導覽
回首頁
高雄市政府
高雄市文化局
住戶登入
導覽地圖
眷村動態
眷村動態
最新消息
政策公告
相關連結
展演活動
展演活動
活動訊息
聊眷村
聊眷村
眷村歷史
鳳山黃埔新村
左營建業新村
岡山樂群村
岡山醒村
計畫發展
線上影音
眷村好店
眷村好店
眷村群介紹
黃埔新村
建業新村
樂群村
醒村
眷村導覽
眷村導覽地圖
眷村店家
眷村遊程
建業新村遊程
黃埔新村遊程
以住代護
以住代護
線上申辦
線上申請查詢
申請眷戶
黃埔新村
建業新村
我是住戶
常見問答
檔案下載
首頁
眷村好店
開放申請眷村建物
略過字型切換,社群分享工具列
小
列印
分享
facebook
twitter
plurk
line
您的瀏覽器似乎不支援JavaScript語法,但沒關係,這裡的JavaScript語法並不會影響到內容的陳述。
如需要選擇字級大小
IE請利用鍵盤按住Alt鍵 + V → X → (G)最大(L)較大(M)中(S)較小(A)小,來選擇適合您的文字大小
Chrome、Firefox 瀏覽器則可利用鍵盤 Ctrl + (+)放大(-)縮小來改變字型大小, 列印可使用瀏覽器提供的(Ctrl+P)功能。
若要分享網頁,您可使用下列連結,再輸入您想要分享的資訊:
facebook
twitter
plurk
line
開放申請眷村建物
:::
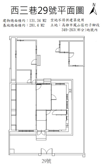
西三巷29號
1195
鳳山區黃埔新村
1樓平房,約1943年落成,距今70餘年,原為日治時期軍事宿舍,磚木構造,後有增改建
120.36354 E 22.61873 N
回列表
建物基本資料
建物名稱
西三巷29號
建物位置
高雄市鳳山區黃埔新村西三巷29號
建物面積
131.34平方公尺
土地面積
281.4平方公尺
格局
1樓平房
屋齡
約1943年落成,距今70餘年
建築構造
原為日治時期軍事宿舍,磚木構造,後有增改建
下載建物平面圖
如遇網站資訊錯誤,歡迎提供您的意見
展開
眷村動態
最新消息
活動訊息
政策公告
相關連結
展演活動
聊眷村
眷村歷史
計畫發展
線上影音
常見問答
眷村好店
眷村群介紹
眷村地圖(舊版)
開放申請眷村建物
眷村店家
眷村VR導覽
以住代護
線上申請查詢
回頂部