跳到主要內容

高雄眷村

Menu

開放申請眷村建物

:::
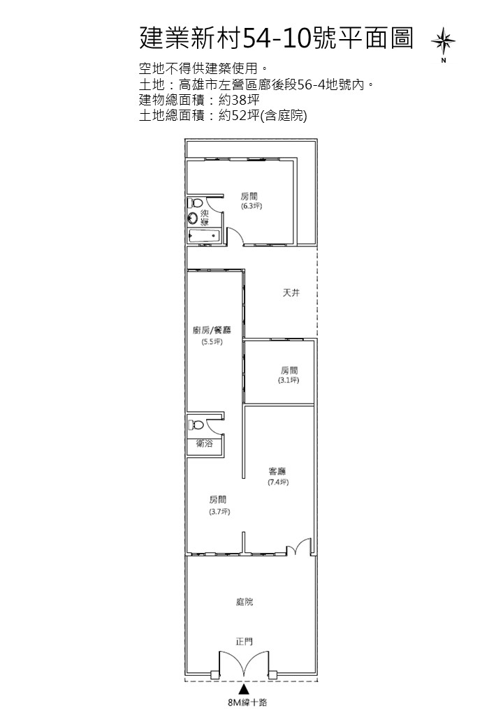
54-10號
2026
左營區建業新村

1樓平房,約1968年落成,距今逾50年,原為日治時期軍事宿舍,磚木構造,後有增改建

眷舍空間影片請點我:https://youtu.be/cUHYodgpF7Q

120.293637 E 22.695276 N

建物基本資料

建物名稱
54-10號
建物位置
高雄市左營區建業新村緯十路54-10號
建物面積
125.62平方公尺
土地面積
171.9平方公尺
格局
1樓平房
屋齡
約1968年落成,距今逾50年
建築構造
原為日治時期軍事宿舍,磚木構造,後有增改建
展開
回頂部